
Nave industrial en venta – Polígono Industrial La Alberca, La Nucía (Alicante)
Se vende nave industrial ubicada en el Polígono Industrial La Alberca, en La Nucía, una zona empresarial en expansión y con creciente actividad industrial, con buenas comunicaciones y fácil acceso a las principales vías de la comarca.
La nave se asienta sobre una parcela aproximada de 3.000 m² y dispone de una superficie construida cercana a 1.760 m², distribuida en planta baja destinada a zona industrial y planta alta de oficinas. La nave cuenta con instalación de placas fotovoltaicas en cubierta, lo que permite reducir significativamente el consumo energético y los costes operativos de la actividad industrial.
Nave industrial con aproximadamente 26 estancias distribuidas entre zona de producción, almacenamiento, servicios y oficinas.
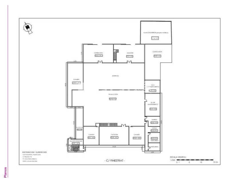
La planta baja cuenta con amplias áreas de producción y trabajo, diferentes zonas de almacenamiento, cámaras, área de empaquetado y distribución, además de vestuarios, aseos y espacios auxiliares necesarios para el funcionamiento de la actividad.
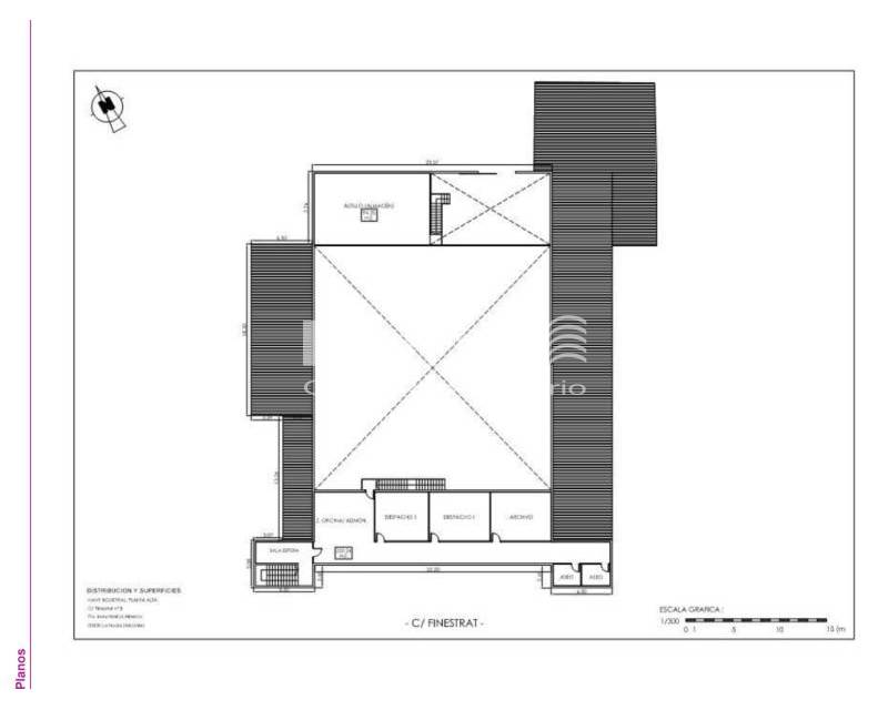
En la planta alta se encuentra la zona administrativa, con sala de espera, despachos, archivo y aseos, proporcionando un espacio funcional para oficinas y gestión empresarial.
El exterior de la nave dispone de amplia zona de parking privado y espacios de circulación, lo que facilita el acceso de vehículos, la carga y descarga de mercancías y la operativa logística.
Características principales:
Nave industrial aislada
Parcela aproximada de 3.000 m²
Superficie construida aproximada de 1.760 m²
Amplia zona de parking privado
Planta baja industrial + planta alta de oficinas
Zonas de producción, almacenamiento y distribución
Oficinas con despachos y sala de espera
Vestuarios y aseos
Ubicada en polígono industrial en crecimiento
Ideal para empresas de producción, logística, distribución o almacenamiento que busquen implantarse en una zona industrial con gran proyección empresarial.